Clearing Things Up at Pequannock WTP
By John Civardi and Brian Dougherty
With a population of about 280,000, the City of Newark is the largest city in New Jersey. Delivering an average of approximately 77 million gallons per day (MGD), the City's water system is one of the largest in the state. The City also delivers water on a wholesale basis to several other municipalities, including Elizabeth, Bloomfield, Belleville, East Orange, Pequannock, and Nutley. More than half the water supply for the City comes from the Pequannock Water Treatment Plant, about twenty miles northwest of Newark, which has a reliable capacity of 45 MGD. The plant draws from the nearby Charlotteburg Reservoir, a high-quality supply with an average turbidity of less than 2 NTU and low total organic carbon (TOC).
The Charlotteburg Reservoir is one of a series of reservoirs linked by the relatively pristine Pequannock River. The New Jersey Department of Environmental Protection has classified the water throughout the 60-square mile watershed as FW-1 or FW-2, the highest quality possible. Due to this high-quality source water, clarification was not provided when the plant was placed into service in 1990. Instead, the plant uses direct filtration, which presents significant operational challenges for the plant operators during turnover events, under cold water temperature conditions and during upsets to the spent filter backwash treatment system. There are no sewers in the vicinity of the plant, so residuals must be managed in a sustainable manner.
The Backwash Challenge
The Pequannock WTP is equipped with 12 filters that operate in declining rate mode. Residuals are generated in the form of spent filter backwash. Each filter is backwashed daily and generates approximately 100,000 gallons of backwash wastewater, or 1.2 MG for all twelve filters. Spent filter backwash is discharged to two backwash holding tanks, from which it is pumped to two decant tanks for clarification (see Fig. 1). Due to the pristine quality of the nearby Pequannock River, discharge of the supernatant to the river is not permitted and the supernatant is recycled to the head of the treatment plant. Settled sludge from the decant tanks is pumped to a sludge lagoon and sludge is periodically removed from the lagoon and disposed of off-site.
The decant tanks were originally provided with tube settlers to enhance removal of suspended solids in the spent filter backwash. Efficient solids removal from the decant tanks is critical to the plant performance, since a high percentage of solids in the supernatant return will overload the filters and result in turbidity breakthrough or premature clogging of the filters.
The tube settlers deteriorated over time and were removed in 1996. Without the tube settlers, the decant tanks provided minimal solids removal. Supernatant water returned to the head of the filters was highly turbid, reducing filtration capacity and filter run times. Maintenance of the tube settlers was difficult, since the tube settlers were covered by a concrete deck, and access for inspection and cleaning required the use of a complex system of rigging and ladders.
This problem was especially severe during cold weather, as the high density of the cold water resulted in a much lower settling velocity. Although turbidity levels of recycled supernatant normally ranged from 4 to 6 NTU, cold-weather turbidity levels were as high as 12 NTU. When heavy rain increased turbidity even further, it was not uncommon to have to shut down the plant.
Seeking a Solution
In 2010, the City of Newark retained Hatch Mott MacDonald to investigate potential solutions to the problem. Inclined plate settlers were identified as a feasible alternative for improving supernatant water quality and were selected for pilot testing. Testing included both bench settling tests and piloting of inclined plate settlers. The testing was conducted to assess the effectiveness of the treatment system and determine optimal system operating parameters. Pilot testing of inclined plate settlers was performed using a plate settler unit supplied by Meurer Research, Inc. (MRI).
The inclined plate settler pilot unit was operated at approximately 85 gpm for nine days, using backwash wastewater pumped from the holding tanks. The average turbidity of the spent filter backwash was 29 NTU. The pilot testing proved that the plate settler process would produce high quality supernatant with the average effluent turbidity during the pilot of 0.6 NTU, at a loading rate of 0.3 gpm/sf.
Design Considerations
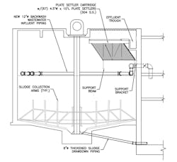
Each of the two 48 x 48-foot decant tanks was equipped with 8 plate settler unit modules, with each module consisting of 67 plates measuring 4.5 x 10 feet set on a 55° incline. The addition of the plate settlers provided an additional 12,450 square feet of additional settling area, resulting in a loading rate of 0.2 gpm/sf.
The installation of the plate settler units required a significant amount of selective demolition to the tank roof and internals, which included the old tube settler frames and supports. An 8 x 36-inch double-channel stainless steel beam was needed to span the 48-foot basin and support the plate modules. Other tank interior work included the installation of new 12-inch ductile iron influent piping around the perimeter of the tank to distribute the flow back across the plate settler modules (see Fig. 2).
The existing sludge collection mechanism at the bottom of each decant tank was determined to be at the end of its useful life. Therefore, the scope of the improvements included the replacement of the circular scraper type sludge collection equipment, including a new drive, center column, and collector arms. The upgrades also included new walkways and handrails around the roof opening.
Construction Operations and Challenges
The City publicly bid the project in October 2012 and awarded the project to Stone Hill Contracting Company, Inc. of Doylestown, Pennsylvania, at a contract value of $1,503,000. The construction of the backwash wastewater improvement began in January 2013 and was completed in December 2013.
One challenge was to maintain operation of the Pequannock WTP throughout construction. Construction of the improvements had to be phased so that one decant tank was always in service. This presented operational challenges once weather conditions resulted in colder water (see Figs. 3, 4).
The first decant tank was completed and placed back into service in late October 2013. Initial results indicated that the system worked well, even with only a single decant tank in service. However, by early November, the water temperature dropped more than 10°F and the decant tank turbidity spiked to approximately 20 NTU. The plant was forced to operate at a reduced flow rate for several weeks while the second decant tank was completed.
The high-turbidity event offered a chance to review the polymer systems employed at the plant. These are extremely critical to the coagulation chemistry and the overall operation of the backwash wastewater system.
The plant uses two polymers for the backwash wastewater system. A cationic polymer, Magnafloc 7989, is used year-round and is fed at the filter waste header. A second anionic polymer, Superfloc A1883, is fed directly into the decant tanks. Working with plant operators and water quality personnel, a jar testing optimization study was performed to evaluate the polymers in use and application rates. The study resulted in recommendations for altering the feed point and modifying the makeup of the polymer to a lower concentration to allow for optimal mixing. After the modifications were made, plant operators witnessed an immediate improvement in the decant effluent turbidity.
The second decant tank was completed and placed back on line in mid-December 2013. MRI conducted performance testing after the second decant tank was completed and chemical feed improvements were completed. The testing was performed over 2 days and turbidity was monitored every 30 minutes over a 6-hour period. The testing also included grab samples from the different effluent troughs to ensure uniform performance and flow distribution.
The performance testing indicated that all turbidity results were 1.5 NTU and lower. The testing also verified that flows were evenly distributed and turbidity removal was consistent across the basin.
Conclusions
The new system contains significant advantages as compared to the original system, including the following:
- Improved overall performance. Plant operators have reported that average turbidity of the decant effluent recycled to the head of the plant is consistently below 1 NTU. This results in improved gravity filter operation.
- Better performance during winter weather. The plate settler improvements coupled with the polymer feed modifications significantly improved water quality during periods of colder temperatures. The winter of 2013-2014 saw record low temperatures in the region and the system performed very well.
- Improved access for operations. The plates are open to atmosphere, which allows simple access for inspection and cleaning. The plates have sufficient strength to allow the operators to walk directly on the plates.
Currently the plant is in full operation and the backwash wastewater system is performing to specifications (see Fig. 5). Water quality goals have been met and the project was completed on time and within budget. Since the upgraded decant tanks commenced operation, plant operators have observed consistent water quality in the recycled backwash and the filter operations have improved by extending filter run times and improving overall water quality.
About the Authors: John Civardi, P.E., is a Vice President with Hatch Mott MacDonald with more than 25 years of experience in a wide variety of water treatment projects. He has been responsible for the pilot testing, evaluation, design, and construction of water treatment systems throughout New Jersey and New York. Mr. Civardi served as Project Manager on this project.
Brian T. Dougherty, P.E., is a Principal Project Manager with Hatch Mott MacDonald. He has more than 18 years of experience in water supply and wastewater engineering. This includes the design, permitting, and construction management of surface water and groundwater treatment plants. Mr. Dougherty served as Project Engineer on this project.
More WaterWorld Current Issue Articles
More WaterWorld Archives Issue Articles




